Description
Arborlon Expandable Container Houses: Standard Layout and Customization Options
Arborlon Expandable Container Houses offer flexible and modern housing solutions, available in standard layouts ranging from one to four bedrooms. These homes are designed with adaptability in mind, allowing you to modify various aspects to better suit your needs.
Standard Layouts with Customization Options
Each container house comes with a standard floor plan, but the layout is not fixed. Homeowners have the freedom to adjust the design by:
- Changing bedroom sizes
- Relocating the kitchen
- Moving the main entrance to the side
- Adding a laundry area
- Installing an additional toilet
This flexibility ensures that your home is built around your lifestyle rather than forcing you to fit into a pre-set design.
Two-Storey Models with Added Features
For those requiring more space, the 20ft and 40ft two-storey models provide additional benefits:
- A toilet on each floor for convenience
- An optional bathtub for enhanced comfort
- Internal staircase options for easy access
These features make the two-storey models ideal for families or individuals looking for a more spacious living arrangement.
Modern and Practical Living Solutions
Beyond their adaptability, Arborlon Expandable Container Houses are designed to be durable, energy-efficient, and stylish. Whether you choose a compact single-bedroom home or a larger four-bedroom layout, you can personalize your space to fit your needs.
With endless customization possibilities, these container homes offer a practical and affordable housing solution, giving you the freedom to create a home that is uniquely yours.
Key Features and Specifications
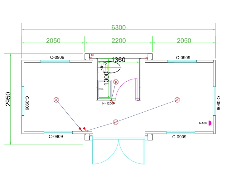
10FT Aborlon Expandable Home
- External Dimensions: 6300mm (W) × 2950mm (L) × 2480mm (H)
- Internal Dimensions: 6140mm (W) × 2510mm (L) × 2240mm (H)
- Folded State: 2200mm (W) × 2950mm (L) × 2480mm (H)
- Total Mass: 1600kg
The 10FT model is compact yet functional, perfect for small living spaces, storage units, or standalone offices.
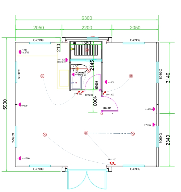
20FT Aborlon Expandable Home
- External Dimensions: 6300mm (W) × 5900mm (L) × 2480mm (H) (Side Height: 2270mm)
- Internal Dimensions: 6140mm (W) × 5460mm (L) × 2240mm (H) (Side Height: 2150mm)
- Folded State: 2200mm (W) × 5900mm (L) × 2480mm (H)
- Total Mass: 2800kg
Offering double the space, the 20FT model is an excellent choice for a small home, mobile office, or additional workspaces.
30FT Aborlon Expandable Home
- External Dimensions: 6220mm (W) × 9000mm (L) × 2480mm (H) (Side Height: 2180mm)
- Internal Dimensions: 6060mm (W) × 8540mm (L) × 2240mm (H) (Side Height: 2060mm)
- Folded State: 2200mm (W) × 9000mm (L) × 2480mm (H)
- Total Mass: 3750kg
The 30FT model is designed for larger residential spaces, business hubs, or modular office setups, offering a generous living area while maintaining portability.
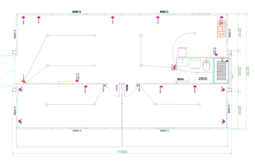
40FT Aborlon Expandable Home
- External Dimensions: 6220mm (W) × 11800mm (L) × 2480mm (H) (Side Height: 2180mm)
- Internal Dimensions: 6060mm (W) × 11540mm (L) × 2200mm (H) (Side Height: 2060mm)
- Folded State: 2200mm (W) × 11800mm (L) × 2480mm (H)
- Total Mass: 4600kg
The largest in the range, the 40FT model provides a full-scale living or working solution, ideal for permanent housing, commercial use, or industrial applications.






























